Trilocale in vendita

Fonte Nuova, Via Carlo Cattaneo - Tor Lupara
€ 169.000
Prezzo aggiornato
3 locali 3 locali
80 Mq 80 Mq
2 bagni 2 bagni

Trilocale in vendita

Fonte Nuova, Via Carlo Cattaneo - Tor Lupara

Descrizione annuncio

In una palazzina moderna del 2010, servita da ascensore fino al piano box, ed in un contesto residenziale e tranquillo, la Tecnocasa di Tor Lupara propone la vendita in esclusiva di un delizioso ed elegante appartamento disposto su due livelli, ideale per chi cerca comfort e funzionalità.

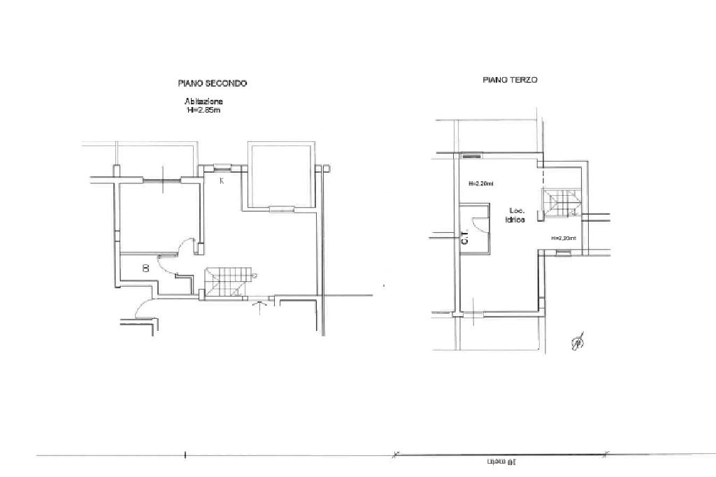
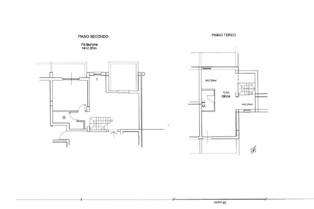
Al secondo piano troviamo un accogliente soggiorno con predisposizione per angolo cottura, una camera da letto, un bagno cieco con vasca e due graziosi terrazzini, di cui uno dotato di barbecue: lo spazio perfetto per pranzi e cene all'aperto.

Attualmente la cucina è stata ricavata nella camera del secondo piano, ma è possibile ripristinarla nella sua collocazione originaria, nel soggiorno, recuperando così la stanza come camera da letto. Una soluzione versatile che si adatta facilmente alle diverse esigenze abitative.

La scala interna conduce al piano superiore, leggermente mansardato, dove si sviluppa una seconda camera, un secondo bagno cieco con doccia e due terrazzini aggiuntivi che regalano luminosità e sfogo esterno anche alla zona notte.

Completano il piano due pratici ripostigli sottotetto; la metratura e la disposizione interna del piano notte permettono di poter ricavare una seconda cameretta, ideale come studio o stanza per i più piccoli.

Ad impreziosire questa splendida soluzione troviamo un box ed un posto auto scoperto di pertinenza.

L'immobile, dotato di certificato di agibilità, si inserisce in un contesto residenziale tranquillo e ben curato, ideale per chi desidera vivere in un ambiente riservato senza rinunciare alla comodità dei servizi.

Siamo riusciti a incuriosirti? Non esitare e contattaci: prenota OGGI un appuntamento per la tua casa di DOMANI.

Contattaci allo 06.90.63922 oppure allo 392.9123310, siamo disponibili anche su WhatsApp, oppure inviaci una email.

Un caloroso staff è a tua completa disposizione.

Mostra tutto

Nelle vicinanze

Trasporto pubblico Trasporto pubblico
Nomentana/G. B. Vico
Nomentana/G. B. Vico
780 m
Nomentana/Monte Livata
Nomentana/Monte Livata
840 m
Ricariche auto elettriche Ricariche auto elettriche
Fonte Nuova Parcheggio COOP | EnelX
840 m
Colleverde | EnelX
1,8 Km
Farmacia Farmacia
Farmacia
990 m
Supermercati Supermercati
Elite
1,7 Km
Bar Bar
Il Ciao
860 m
Bar
1,7 Km
Caraibe
2,3 Km
Ristoranti Ristoranti
Komugi
1,1 Km
Il Portico
1,4 Km
Dar Braciola
1,9 Km
Ristorante Pizzeria Tony
2,6 Km
Mediterraneo
2,6 Km
Mostra tutto

Caratteristiche

Rif.:
61117482
Piano:
2 di 3 con ascensore (ultimo Piano)
Box:
1
Posti auto:
1
Balconi:
2
Terrazzi:
2
Mostra tutto
Prezzo Prezzo
€ 169.000
Rata mutuo Rata mutuo
€ 796 / mese
Spese annue Spese annue
€ 1.080
Proponi il tuo prezzoProponi il tuo prezzo

Classe Energetica

G
G
G
G
G
G
G
G
G
EP globale non rinnovabile:
175.00 kW h/m² anno
EP globale rinnovabile:
175.00 kW h/m² anno
EP invernale del fabbricato:
EP estiva del fabbricato:
Anno di costruzione:
2010
Riscaldamento:
Autonomo
Tipo impianto:
A radiatori
Tipo alimentazione:
Metano

Prezzo ridotto di €1 (6%%)

Ti interessa visionare l'immobile?

Fissa un appuntamento  Fissa un appuntamento

Richiedi informazioni

Clicca su Leggi per aprire l'informativa
* Questi campi sono obbligatori

Calcola il tuo mutuo

Semplice e senza impegno
Anticipo

( % )
Mutuo

( % )

pochi semplici passi

inserisci i tuoi dati
Questionario completato
Grazie per aver richiesto un appuntamento senza impegno con un nostro Consulente del Credito e Assicurativo.

Hai inserito correttamente tutti i dati necessari e a breve riceverai una e-mail con un link da convalidare per inviare i tuoi dati.
Affiliato
Studio Tor Lupara Srl
Via Nomentana, 624 00013 Fonte Nuova (RM)

Il nostro staff


  • Andrea Fiorentini
    Responsabile

  • Noemi Campus
    Responsabile

  • Klea Keta
    Collaboratrice

  • Alessio Silvestri
    Affiliato
Via Nomentana, 624 00013 Fonte Nuova (RM)
Zona: Tor Lupara di Fonte Nuova
Mostra su mappa
Orari: Dal lunedì al venerdì 9:00-13:00/15:30-19:30; Sabato 9:00-13:00
Affiliato
Studio Tor Lupara Srl
Via Nomentana, 624 00013 Fonte Nuova (RM)

2026 Tecnocasa Franchising S.p.A. - P. IVA 08365160152 - Via Monte Bianco 60/A 20089 Rozzano (MI). Ogni agenzia ha un proprio titolare ed è autonoma. Privacy policy | Policy utilizzo | Cookie policy