Trilocale in vendita

Fonte Nuova, Via Valle dei Corsi - Tor Lupara
€ 169.000
Prezzo aggiornato
3 locali 3 locali
90 Mq 90 Mq
2 bagni 2 bagni

Trilocale in vendita

Fonte Nuova, Via Valle dei Corsi - Tor Lupara

Descrizione annuncio

Situato in una zona tranquilla e riservata, più precisamente in Via Gioberti, la Tecnocasa di Tor Lupara propone la vendita in esclusiva di un appartamento bilivello, in ottimo stato interno, ideale per chi cerca una soluzione abitativa comoda e con uno spazio esterno vivibile.

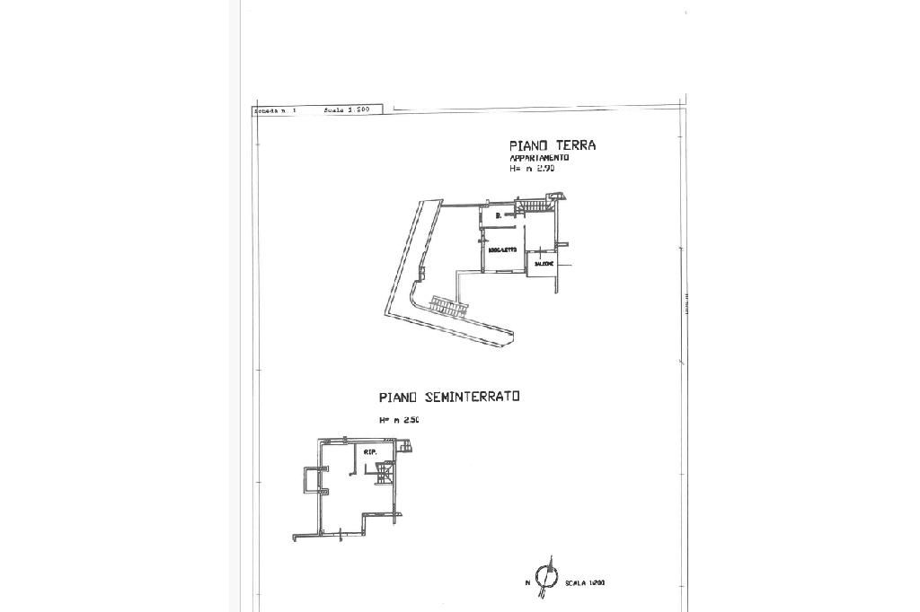
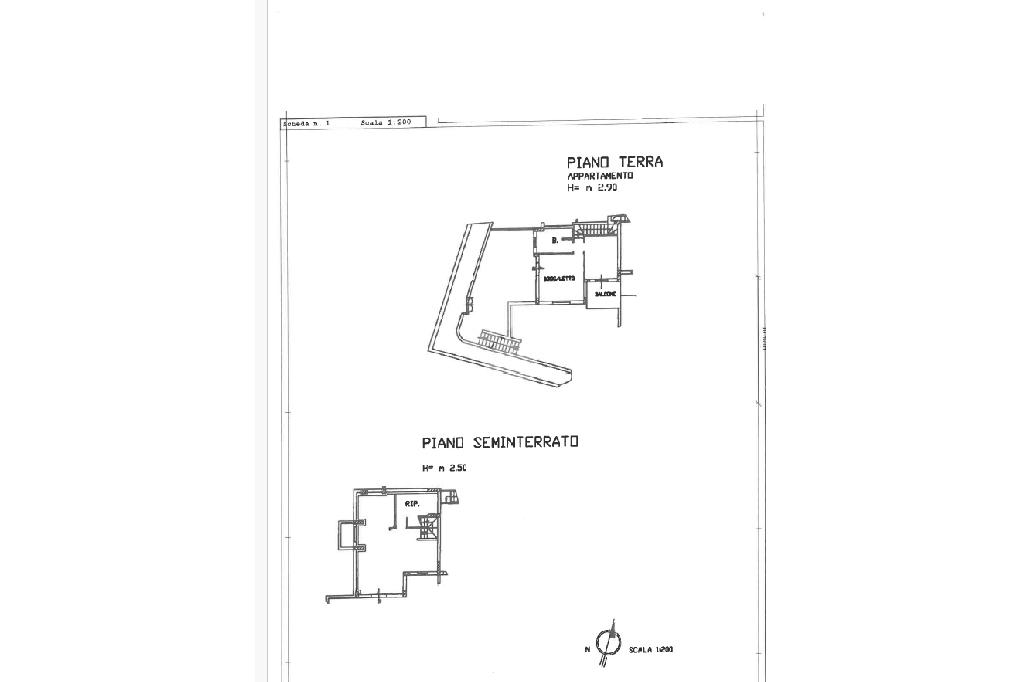
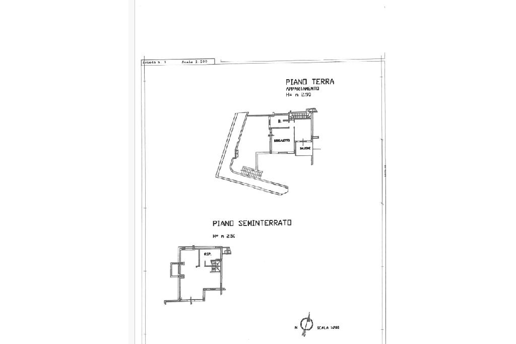
L'immobile è così composto:

- Al piano terra troviamo un soggiorno con angolo cottura, bagno cieco con vasca e ripostiglio;

- Al piano primo troviamo una camera matrimoniale, una cameretta e un secondo bagno finestrato.

Impreziosisce questa proprietà un giardino perimetrale privato, su due livelli anch'esso, perfetto per momenti di relax all'aperto e un doppio posto auto: uno interno alla proprietà ed uno esterno, per la massima comodità.

Inoltre il doppio ingresso indipendente, uno da Via Gioberti e l'altro da Via Valle dei Corsi garantisce privacy e versatilità d'uso

L'immobile si presenta in ottimo stato ed pronto per essere abitato senza necessità di interventi immediati.

Il piano terra è attualmente accatastato come cantina (C2). L'acquirente potrà procedere, a propria cura e spese, al cambio di destinazione d'uso.

Data la natura catastale, l'acquisto può essere effettuato con un mutuo massimo del 50%.

Scrivici su WhatsApp al 3929123310, chiamaci allo 06 9063922 oppure inviaci una mail.

Ti aspettiamo in Via Nomentana 624, Tor Lupara: il nostro staff sarà lieto di accoglierti e accompagnarti alla scoperta della tua nuova casa.

Mostra tutto

Nelle vicinanze

Trasporto pubblico Trasporto pubblico
Nomentana/Monte Livata
Nomentana/Monte Livata
30 m
Nomentana/G. B. Vico
Nomentana/G. B. Vico
270 m
Ricariche auto elettriche Ricariche auto elettriche
Fonte Nuova Parcheggio COOP | EnelX
130 m
Colleverde | EnelX
1,2 Km
Scuole Scuole
Istituto comprensivo statale Luigi Pirandello
3,0 Km
Farmacia Farmacia
Farmacia
720 m
Supermercati Supermercati
Elite
1,2 Km
Emme Più
2,9 Km
Bar Bar
Il Ciao
10 m
Bar
1,3 Km
Caraibe
1,9 Km
Ristoranti Ristoranti
Komugi
420 m
Il Portico
1,1 Km
Dar Braciola
1,4 Km
Ristorante Pizzeria Tony
2,3 Km
Mediterraneo
2,3 Km
Mostra tutto

Caratteristiche

Rif.:
61123170
Piano:
2 di 3 (Piano su più livelli)
Posti auto:
2
Balconi:
1
Camere da letto:
2
Arredamento:
Assente
Mostra tutto
Prezzo Prezzo
€ 169.000
Rata mutuo Rata mutuo
€ 788 / mese
Spese annue Spese annue
€ 240
Proponi il tuo prezzoProponi il tuo prezzo

Classe Energetica

G
G
G
G
G
G
G
G
G
EP globale non rinnovabile:
175.00 kW h/m² anno
EP globale rinnovabile:
175.00 kW h/m² anno
EP invernale del fabbricato:
EP estiva del fabbricato:
Anno di costruzione:
2004
Riscaldamento:
Autonomo
Tipo impianto:
A radiatori
Tipo alimentazione:
Metano

Prezzo ridotto di €1 (7%%)

Ti interessa visionare l'immobile?

Fissa un appuntamento  Fissa un appuntamento

Richiedi informazioni

Clicca su Leggi per aprire l'informativa
* Questi campi sono obbligatori

Calcola il tuo mutuo

Semplice e senza impegno
Anticipo

( % )
Mutuo

( % )

pochi semplici passi

inserisci i tuoi dati
Questionario completato
Grazie per aver richiesto un appuntamento senza impegno con un nostro Consulente del Credito e Assicurativo.

Hai inserito correttamente tutti i dati necessari e a breve riceverai una e-mail con un link da convalidare per inviare i tuoi dati.
Affiliato
Studio Tor Lupara Srl
Via Nomentana, 624 00013 Fonte Nuova (RM)

Il nostro staff


  • Andrea Fiorentini
    Responsabile

  • Noemi Campus
    Responsabile

  • Klea Keta
    Collaboratrice

  • Alessio Silvestri
    Affiliato
Via Nomentana, 624 00013 Fonte Nuova (RM)
Zona: Tor Lupara di Fonte Nuova
Mostra su mappa
Orari: Dal lunedì al venerdì 9:00-13:00/15:30-19:30; Sabato 9:00-13:00
Affiliato
Studio Tor Lupara Srl
Via Nomentana, 624 00013 Fonte Nuova (RM)

2025 Tecnocasa Franchising S.p.A. - P. IVA 08365160152 - Via Monte Bianco 60/A 20089 Rozzano (MI). Ogni agenzia ha un proprio titolare ed è autonoma. Privacy policy | Policy utilizzo | Cookie policy