Porzione di quadrifamiliare in vendita

Fonte Nuova, Via Demostene - Tor Lupara
€ 299.000
5 locali 5 locali
200 Mq 200 Mq
2 bagni 2 bagni

Porzione di quadrifamiliare in vendita

Fonte Nuova, Via Demostene - Tor Lupara

Descrizione annuncio

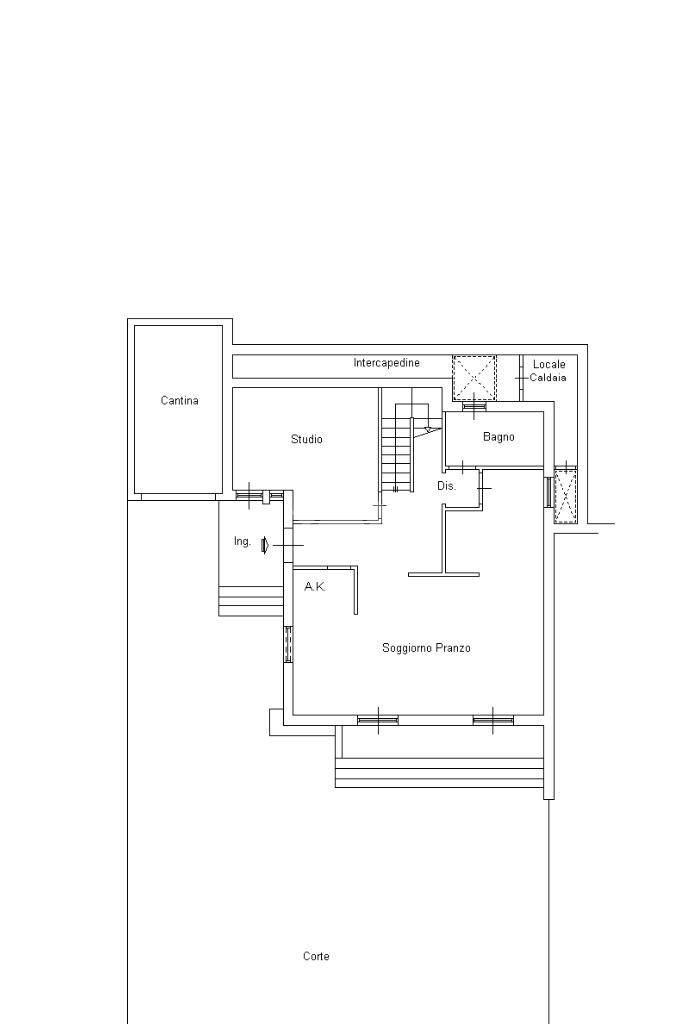
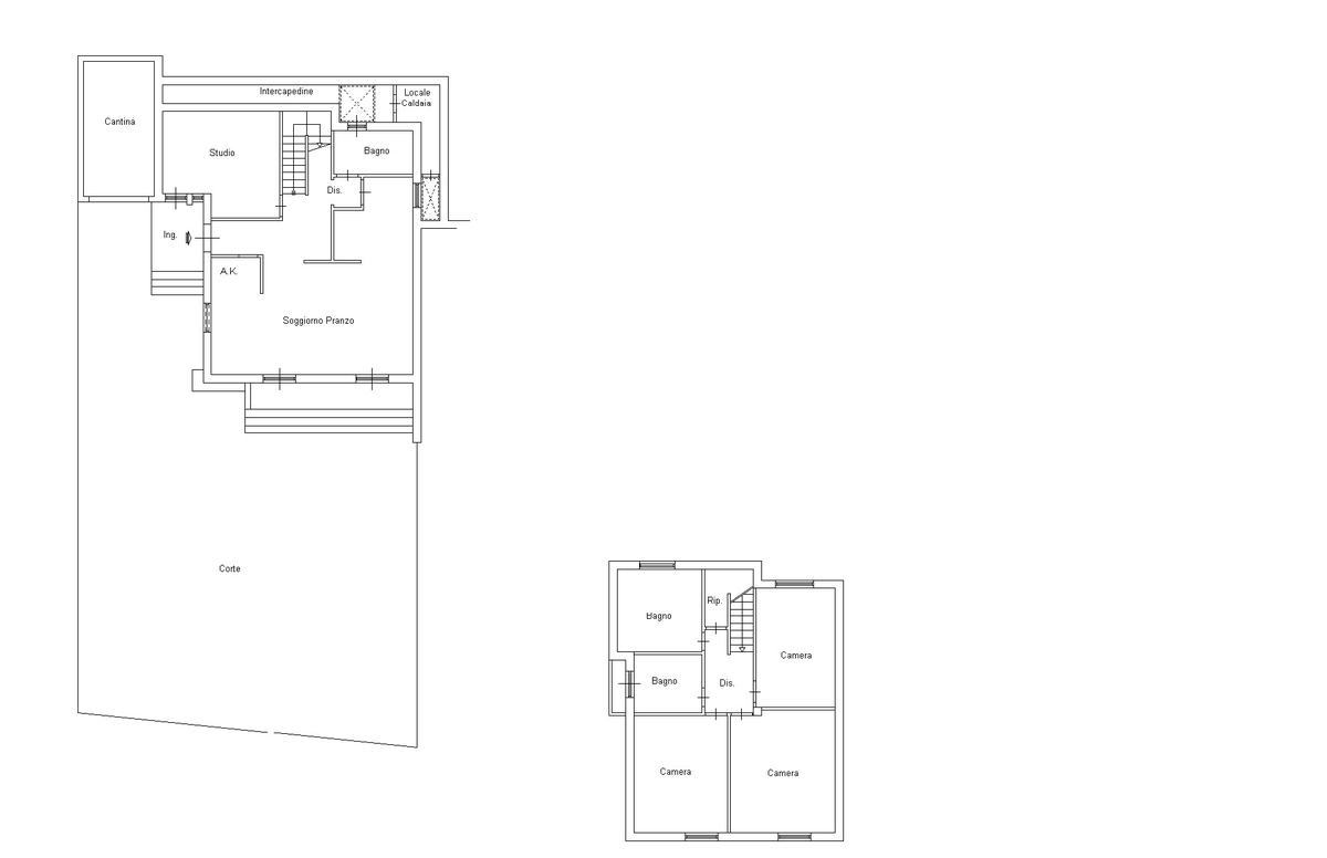
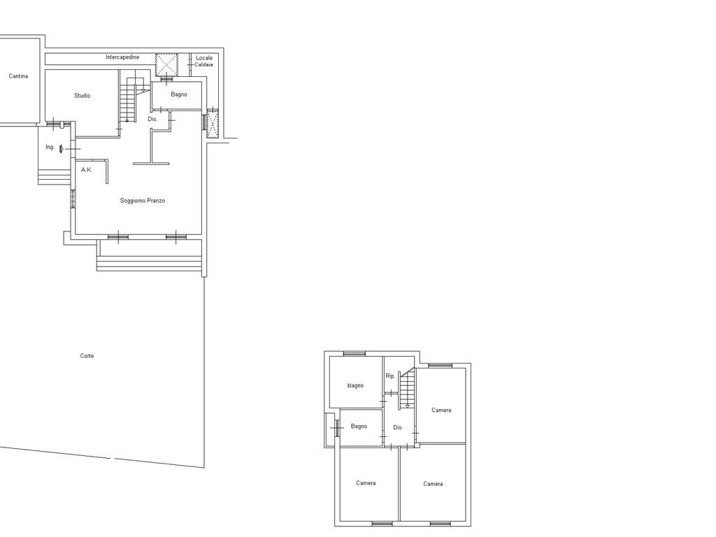
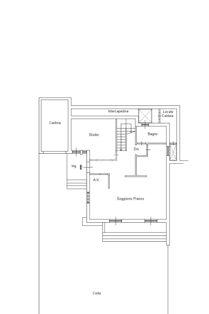
In contesto residenziale tranquillo, più precisamente su Via Demostene, la Tecnocasa di Tor Lupara propone in vendita una porzione di villa su due livelli, senza spese condominiali, con una superficie interna di 190 m² e 150 m² di spazio esterno pavimentato, ideale per chi cerca comfort, privacy e ampi spazi vivibili.

Piano Terra:

L’ingresso si apre su un accogliente soggiorno con angolo cottura e camino in stile rustico, caratterizzato da travi a vista e finiture calde. Una camera da letto matrimoniale, un bagno finestrato con box doccia e un pratico ripostiglio completano il piano. Il soggiorno è impreziosito da due porte finestra che garantiscono luminosità naturale e consentono l’accesso diretto allo spazio esterno di pertinenza, completamente pavimentato, perfetto per momenti di relax e convivialità, dotato di forno a legna e barbecue in muratura.

Piano Superiore:

Una comoda scala interna conduce al livello superiore, dove si trovano tre spaziose camere da letto, un secondo bagno finestrato con vasca idromassaggio, una funzionale zona lavanderia dotata di un piccolo balcone e un ulteriore ripostiglio, ideale per organizzare al meglio gli spazi.

L’immobile è stato oggetto di una completa ristrutturazione nel 2022: sono stati sostituiti tutti gli infissi e realizzati il cappotto termico e l’installazione dei pannelli solari, garantendo un elevato comfort abitativo e un importante risparmio energetico.

Arricchisce la proprietà un box auto di 20 mq

Questa soluzione è ideale per famiglie numerose o per chi desidera vivere in un ambiente indipendente, ben distribuito e con ampi spazi esterni ed esterni.

CONATATTACI SUBITO PER FISSARE IL TUO APPUNTAMENTO.

Chiamaci per fissare il tuo appuntamento allo 06.90.63922 oppure allo 392.9123310, disponibili anche su WhatsApp.

Un consulente esperto della zona ti accompagnerà a visionare questa soluzione.

Ci troviamo in via Nomentana 624, Tor Lupara.

Mostra tutto

Nelle vicinanze

Trasporto pubblico Trasporto pubblico
Nomentana/Parini
Nomentana/Parini
810 m
Nomentana/G. B. Vico
Nomentana/G. B. Vico
890 m
Ricariche auto elettriche Ricariche auto elettriche
Fonte Nuova Parcheggio COOP | EnelX
1,0 Km
Colleverde | EnelX
2,2 Km
Farmacia Farmacia
Farmacia
840 m
Supermercati Supermercati
Elite
1,5 Km
Bar Bar
Il Ciao
1,1 Km
Bar
1,5 Km
Caraibe
2,8 Km
Ristoranti Ristoranti
Il Portico
1,2 Km
Komugi
1,5 Km
Dar Braciola
1,7 Km
Ristorante Pizzeria Tony
2,2 Km
Mediterraneo
2,2 Km
Mostra tutto

Caratteristiche

Rif.:
61152736
Piano:
2 di 2 (Piano terra con giardino)
Box:
1
Posti auto:
2
Balconi:
1
Terrazzi:
1
Mostra tutto
Prezzo Prezzo
€ 299.000
Rata mutuo Rata mutuo
€ 1.411 / mese
Spese annue Spese annue
€ 0
Proponi il tuo prezzoProponi il tuo prezzo

Classe Energetica

Questo immobile è esente da classe energetica
Anno di costruzione:
1980
Riscaldamento:
Autonomo
Tipo impianto:
A radiatori
Tipo alimentazione:
Metano

Ti interessa visionare l'immobile?

Fissa un appuntamento  Fissa un appuntamento

Richiedi informazioni

Clicca su Leggi per aprire l'informativa
* Questi campi sono obbligatori

Calcola il tuo mutuo

Semplice e senza impegno
Anticipo

( % )
Mutuo

( % )

pochi semplici passi

inserisci i tuoi dati
Questionario completato
Grazie per aver richiesto un appuntamento senza impegno con un nostro Consulente del Credito e Assicurativo.

Hai inserito correttamente tutti i dati necessari e a breve riceverai una e-mail con un link da convalidare per inviare i tuoi dati.
Affiliato
Studio Tor Lupara Srl
Via Nomentana, 624 00013 Fonte Nuova (RM)

Il nostro staff


  • Andrea Fiorentini
    Responsabile

  • Noemi Campus
    Responsabile

  • Klea Keta
    Collaboratrice

  • Alessio Silvestri
    Affiliato
Via Nomentana, 624 00013 Fonte Nuova (RM)
Zona: Tor Lupara di Fonte Nuova
Mostra su mappa
Orari: Dal lunedì al venerdì 9:00-13:00/15:30-19:30; Sabato 9:00-13:00
Affiliato
Studio Tor Lupara Srl
Via Nomentana, 624 00013 Fonte Nuova (RM)

2025 Tecnocasa Franchising S.p.A. - P. IVA 08365160152 - Via Monte Bianco 60/A 20089 Rozzano (MI). Ogni agenzia ha un proprio titolare ed è autonoma. Privacy policy | Policy utilizzo | Cookie policy